Djanogly City Academy replaces Forest School, which was closed in 2002, and Djanogly City Technology College, which had become over-subscribed. The Academy is based on two sites and the new building contains teaching spaces for more than 800 students aged between 11 and 14. Despite the Academy’s inner-city location and close proximity to a major road, the site is dominated by green space. The building is on the edge of Forest Recreation Ground, which once formed part of the ancient Sherwood Forest, and to the rear of the Academy, the former school was demolished to create playing fields. The Academy’s design exploits this natural setting, with full height glazing to draw the landscape into the building and wide terraces, sheltered by a canopy of brise soleil.
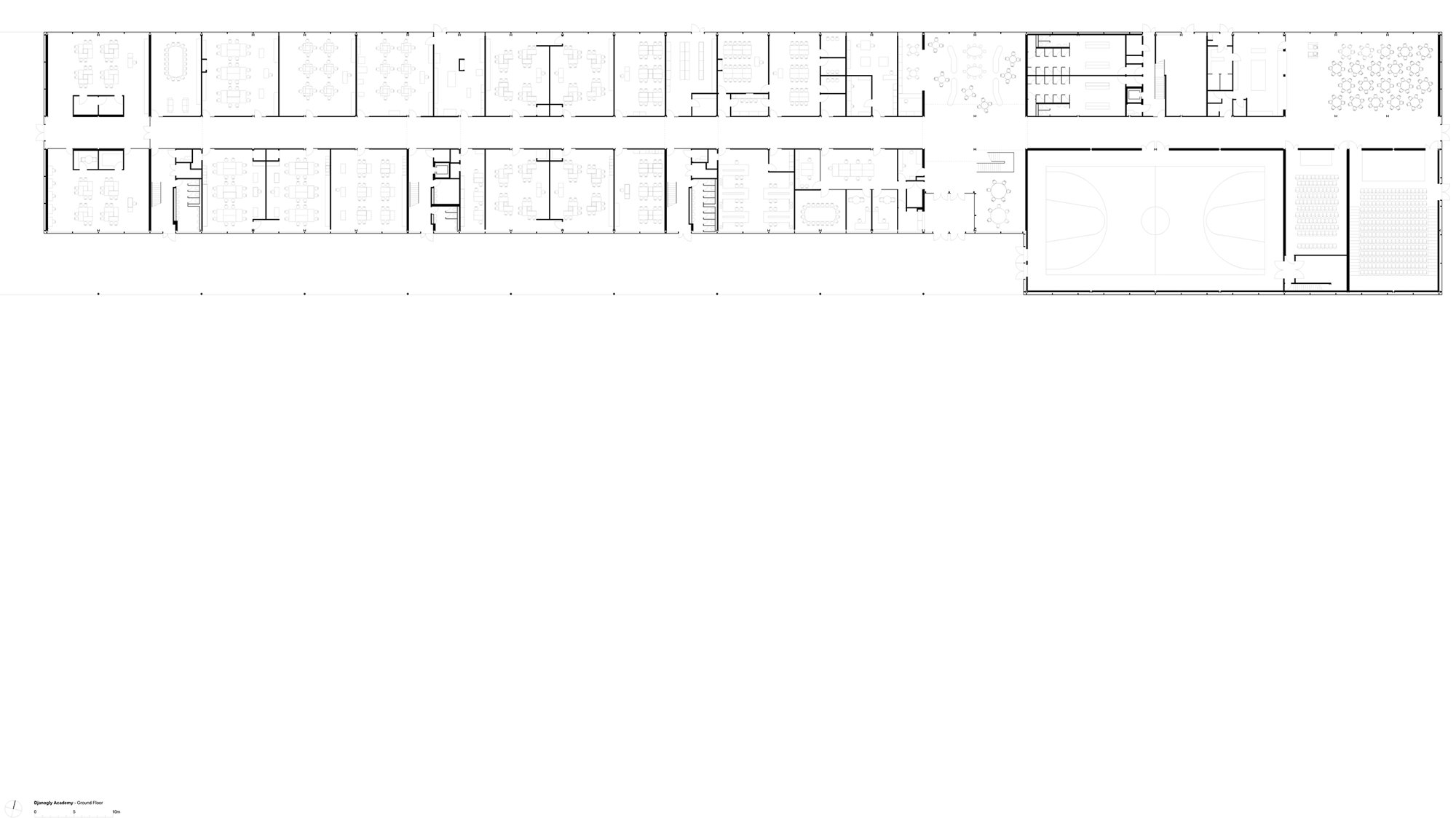
A simple rectangle on plan, the teaching spaces extend from a long central atrium, bounded at each end by double-height spaces, containing a restaurant, entrance hall, library and internet café. Breaking down the scale of the Academy into three ‘houses’, the elevated balconies define self-contained units, each with its own resource area and staff room. The theatre and sports facilities are grouped together in the east of the building, away from the teaching areas, to allow easy out-of-hours use by the local community. Classroom doors are glazed and an installation of coloured panels by artist, Sophie Smallhorn runs through the main circulation route, between each structural bay. The steel frame encloses a glass facade and internal walls are non load-bearing, so can be moved in future to suit changing requirements.
Djanogly’s academic specialism is Information and Communication Technologies and the school was one of the first to bring laptops into the classroom, eliminating traditional computer suites. To reduce energy demand, chilled beams in the upper level teaching spaces counter the heat gain caused by computer equipment and the north of the building is naturally ventilated by high level vents. Since moving into the new building, the academic transformation has been remarkable, with around sixty percent of year 11 students now gaining five or more A to C grades, a figure previously achieved by just eight percent.








































