The new headquarters for DJI, the world’s leader in civilian drones and creative camera technology is located in the Nanshan District in southwest Shenzhen, China. The two towers – 44 storeys (212 metres) and 40 storeys (194 metres) respectively – are set to become the ‘heart of innovation’ for the company and form a creative community in the sky.
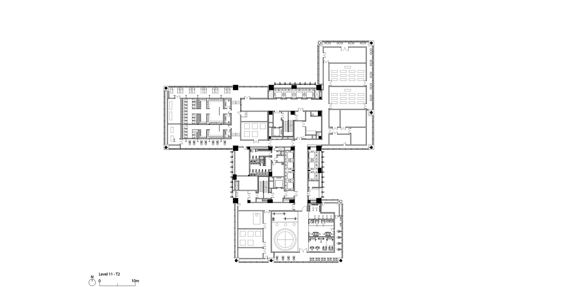
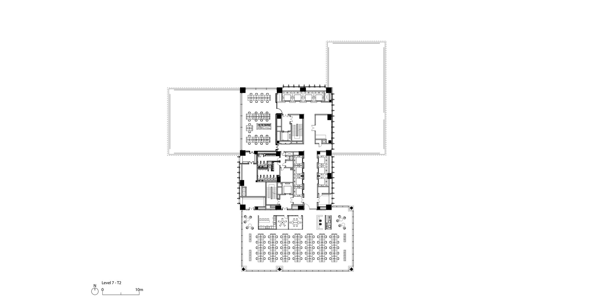
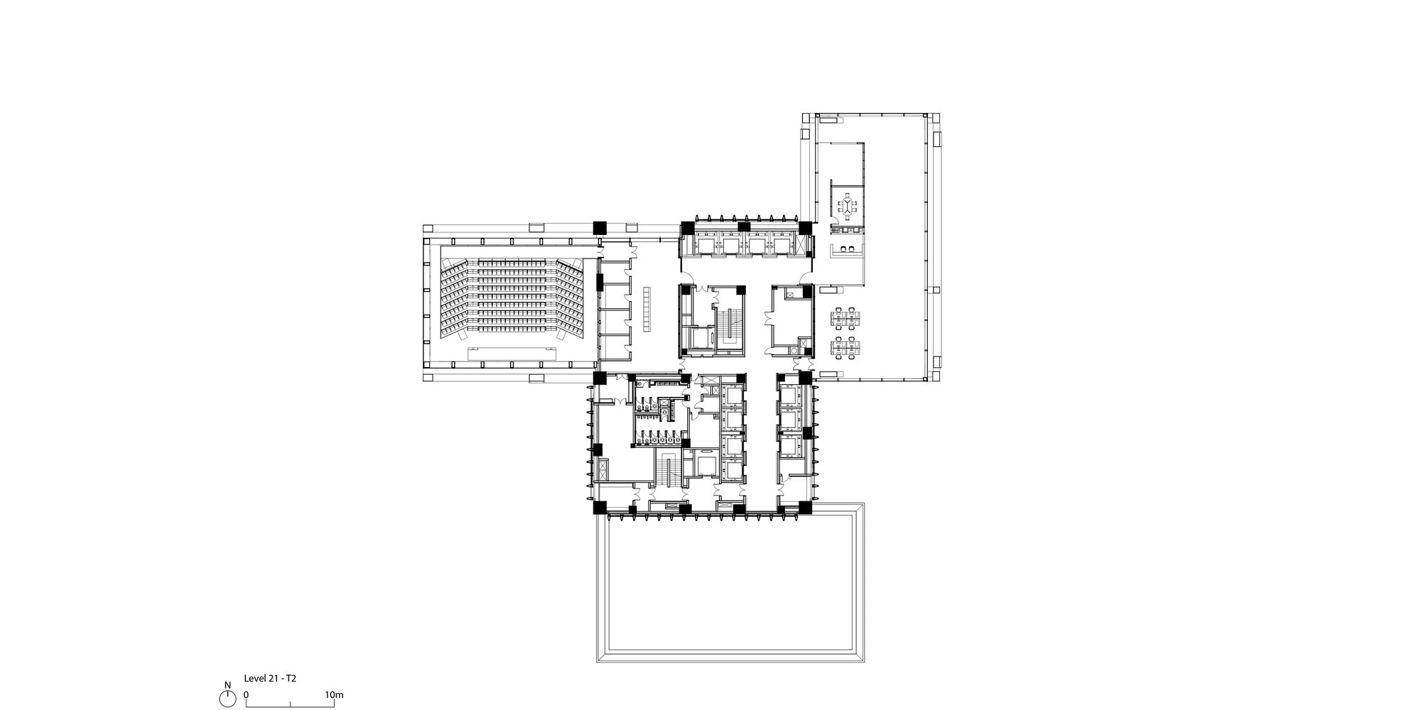
Across the two towers, office and research spaces are arranged in floating volumes cantilevered from central cores by large megatrusses and circular profiled steel suspension rods. The first use of an asymmetrical suspension steel structure in a high-rise tower of this scale, the innovative structure reduces the need for columns, thus creating impressive and uninterrupted office and research spaces. It also allows for quadruple-height drone flight testing labs that are unique to DJI. These labs are expressed externally through the unique V-shaped trusses that give the towers their distinctive identity, against the backdrop of the city’s skyline.
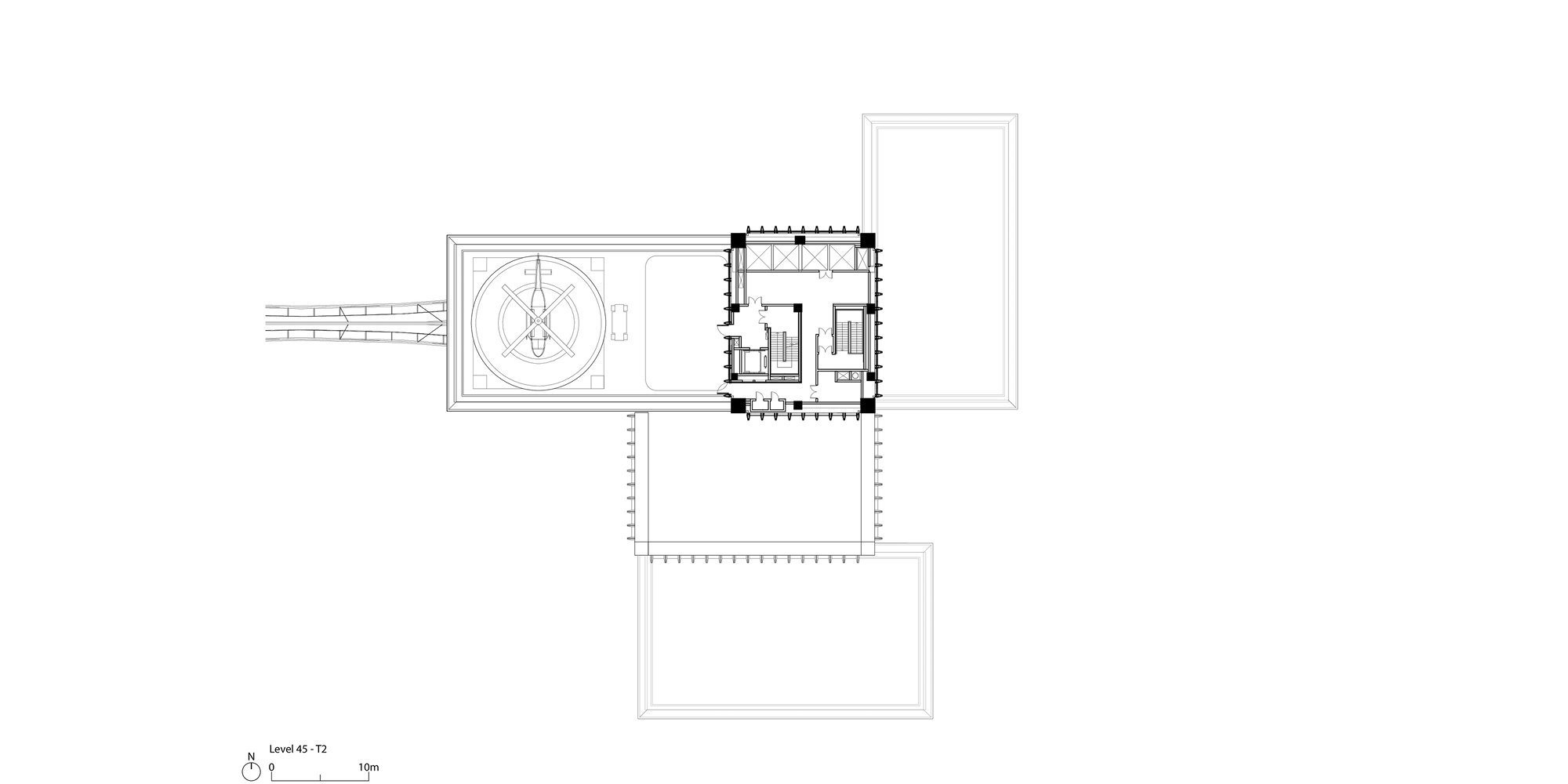
The building’s functions include offices, research labs, test flight area, staff training, and public facilities. At 105 metres, the towers are linked by a 90-metre-long suspension sky-bridge, a lightweight element that creates an elegant connection between the two volumes. At the top of the floating volumes, skygardens provide private outdoor spaces for staff.
At ground level, the lifted volumes draw the surrounding greenery into the base of the buildings via a sloping green podium garden that is open to everyone. The ground floor also features public facilities such as a community healthcare centre. In this way, the ground level is designed to be open and inviting – a gesture of DJI’s respect towards their urban surroundings and its contribution to the local community.
The innovative structure seeks to redefine the design of tall buildings in the region, creating a prominent new landmark that celebrates Shenzhen’s place as a UNESCO City of Design. The design of the floorplate maximises daylight and views, improving comfort levels while reducing energy consumption. The innovative TWIN lift system reduces the number of shafts required and increases usable office floor area. Its intelligent control system also allows reduction of energy consumption during off-peak periods. Rainwater is harvested and stored for re-use, and greywater is recycled for irrigation. The landscaped areas absorb rainfall and act as buffer during monsoon season.












































