View the 360 tour
The McLaren Production Centre is the second building designed by Foster + Partners at McLaren’s rural site on the outskirts of London. The 34,500-square-metre facility is intended for the manufacture of a range of high-performance road cars and is located to the south-west of the existing McLaren Technology Centre. The two buildings are connected by a subterranean walkway, lined with interactive exhibition spaces. Sharing a common language of details and materials, the new building is clad in aluminium tubes, the rounded corners of its rectilinear plan reference the curves of the Technology Centre and the entrance, echoing the existing building, is a circular glass drum beneath the overhang of the roof canopy.
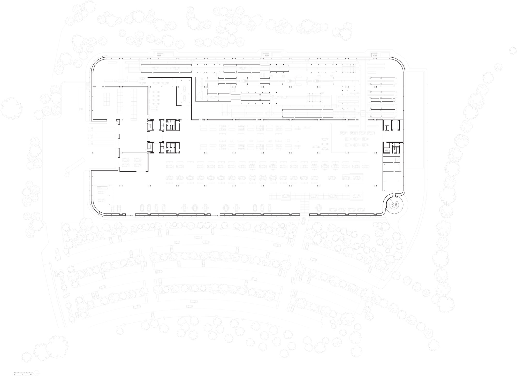
The MPC further develops an approach to industrial architecture that was first explored in some of the practice’s earliest projects for Reliance Controls and Renault. The roof canopy is supported by a series of slender columns based on a standard grid with repeated components, and services are integrated with the painted steel structure. McLaren’s manufacturing processes are closer in spirit to an operating theatre than a factory and the new building, with its ceramic tiled floors, is designed to showcase this technology. The linear arrangement of the two-storey structure mirrors the flow of the production line: components are delivered; the cars are assembled, painted and tested, and then pass through a rolling road and car wash, before leaving the building. Below this is a basement level for storage and above is a mezzanine floor with views over the production line. The expansion of the campus is a similarly discreet intervention in the landscape. Rising to just over 7 metres in height and embedded in the gentle incline of the site, the Production Centre is sensitive to its rural setting and will not be visible from the nearby road. Further screening is provided by the extensive planting of trees and excavated material helps to conceal the building within the hill. The new building is also designed to be sustainable – the Technology Centre uses the lake for its cooling system, so the roof of the MPC supports this by collecting rainwater and implementing a low-energy system of displacement ventilation.
































